안심고시원 선정
ㅁㅁ고시원
- 법정동 주소: 서울특별시 동작구 사당동 89-69
- 도로명 주소: 서울특별시 동작구 동작대로29길 18
현장사진
관리카드
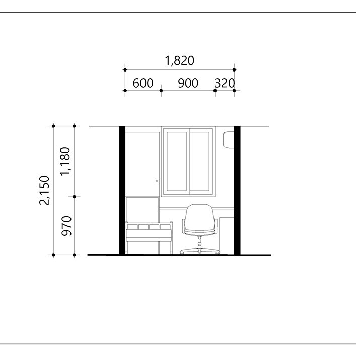
거주환경
ㅁㅁ고시원 운영자 면담
2022.10.15 토 오후 6:20
안녕하세요. 면담지 받으시고 대화하듯 편하게 면담에 임해주시면 감사하겠습니다.
혹시 고시원 운영한 거는 얼마나 되신 거예요.
저는 13년 동안 운영했어요. 광일고시원만 13년 된 거예요.
그전에는 다른 데 운영하지 않았어요. 이거는 처음. 시작한 거야.
다른데 몇 군데 더 운영하시는 게 있는 거예요?
독서실을 운영하고 있어요. 고시원이랑 독서실이랑.
같이 협업해 가지고. 이제 같은 맥락이니까 저 여기 오시다 보면 비전이라고 있어요.
네 그거는 독서실인데, 그것도 제가하는 거에요.
공실이 많나요. 지금 현재 공실이 높아 왜 높은 거예요.
코로나 때문에 그런 거인가요?
코로나 이전에 이미 이게 이제 인강으로 돌아가는 그 시점하고 코로나하고 거의 맞물렸거든요. 근데 인강이 먼저 터지고 있고. 인터넷 강의로 이제 돌아가면서 현강에서 인터넷 강의로 돌아가는 그 시점이 있었어요. 그 시점에서 살짝 얹어진 거지.
그러니까 이제 코로나가 얹어지니까 코로나가 비대면 수업이 가능하다는 걸 입증한 사례가 돼 버린 거예요.
그 인강이 그건데 사람들이 그것 때문에 힘들어 했어 집에서 하다가 돌아오는 상황이 그때는 많았는데 어차피 못 오는 상황이 되니까 그게 집에서도 된다는 게 그 기간 동안에 입증이 완전히 돼버린 거야 그러니까는 실제로 여기 오는 지금 현재 오시는 분들은 현감을 그래도 들어야 되겠다는 사람도 있고 뭐 면접 준비나 뭐 체력 학원 전문 체력 학원이 여기 몰려 있으니까 그런 분들이 있고 또 그래도 뭔가 다시 처음부터 시작하는데 혼자서 집에서 못 하겠다 하시는 분들은 이제 그래도 오시는 거지 지금 현재 그렇게 돼 있어요.
스피링쿨러는언제쯤 설치되는지 알 수 있을까요?
건축할 때 같이. 그때 그 당시에 설치했으니깐 13년.
다른 여기 사시는 거주자분들이 요구하는 건 없어요?
밥 달라고 해요. 그러니까 이제 이런 거지 왜 기본밥을 주잖아요.
밥하고 김치하고 그런데 여기서 생활하는 게 제일 문제가 뭐냐면 먹는 식사가 어차피 방세는 따로 있지만 밥값은 개별로 다 사 먹잖아요.
네 그래서 저도 이제 학생들한테 저도 실태조사를 해요.
어떻게 먹고 있냐 지금 현재 가장 필요한 게 뭐냐 왜냐하면 제가 이걸 해보니까 제가 처음에 사업할 때는 그게 필요가 없었어요.
너무 사람도 많고 여기 운영이 잘 되고 밖에 시설이 더 잘 돼 있었어 식당이나 이런 거 구조들이 그런데 지금은 좀 약간 변형이 됐잖아 학생 수도 좀 줄은데다가 밖에 식당도 좀 이제 줄고. 그리고 여기 오는 학생들도 뭔가 이제 경제적으로 부담이 가는 게 학생이 부담이 가는 게 아니라 부모님들이 부담이 좀 가니까 물어봤더니 제 밥값 얘기 듣고 놀란 게 한 달 밥값을 한 50~60만원 잡는데요. 하루 세 끼를 한 달 생각해 보십시오. 50만 원 갖고 만족하지 못해 왜냐면 피자도 먹어야지 치킨도 좀 먹어야지 공부한다고 자기 성인들인데 자기 사정을 알아서 친구도 만나야지 여러 가지로 그런 거 따지면 50~60만원이 들어요. 거의 많은 게 아닌데 몇 명한테 물었더니 그 소리를 좀 많이 해요. 그래서 제가 밥을 주려고 식당은 있어서 저희가 김치하고 밥은 줬어요. 줬는데 그거는 그냥 밥 사 먹고 여기서 라면 끓여 먹을 때 정도 필요한 거지 전문 밥이 아니잖아요. 그 한 끼도 안 되는 그래서 제가 1층을 지금 식당으로 지금 만들어 놓은 거예요. 그 아까 그 자리가 여기 앉아 계신데 저희가 지금 공사 중인 거야 현재 거기 칸도 좀 맞고 그래서 밥을 아예 그냥 해주고.

입실료 때문에 면제해달라는 학생들의 제의를 받으신적이 있으신가요?
그런 건 없어요. 사실은 그런 얘기는 여기는 잘 안해요. 이거는 가끔 있는데 높은 임대료보다 저희는 작으니까 이걸 없는 거고 노후한 시설은 이쯤인가 갈등이 좀 있으면 건물주 안에 갈등 이쯤인간에 갈등.
입주민끼리 싸우거나 이런 건 없나요?
없어요. 싸우는 것도 없어요. 말다툼을 한다든지 뭐 옆방끼리 시끄러워서 언쟁을 한다든지 그럼 나가라고 그래. 그게 아니라 이거는 저는 제가 직접 하면서 그걸 느낀 거야 방이 좁은데 소음이 나면 시끄러울 수 있잖아요.
서로 간에 첫째는 이해를 못하면 못 살고 그러면 저는 여기 와갖고 남남이지만 이웃이다.
서로 배려를 조금씩 하고 이해를 좀 하고 얘기를 하면 되는데 말이 없으니까 싸우는 거예요.
말로 하는 안 싸우는데 벽을 치는 거야 뭐 이렇게 자다가 쿵 했는데 뭐가 자기도 모르게 소리가 나잖아 실수할 수도 있는데 그런데 옆방에서 이제 그거를 반응을 조용히 하세요 하고 글씨라도 좀 써놓고 손 쪽지라도 남기면 괜찮은데 감정이 들어가서 저 쿵 치면 상에서 두 번 치는 거예요. 그런 일이 있으면 저 같은 경우는 그거를 이제 그게 두 분 중에 한 사람이 저한테 얼른 얘기를 하면 제가 해결을 해줘요. 화해시키거나 그러지는 못해요. 갈등 문제로 제가 해소를 해주고 또 저기 방을 좀 옮겨준다든지 층을 좀 따로 좀 보내준다든지 서로 부딪히지 않게 최소한 해주고 그리고 이 사람이 왜 그랬는지 알아보고 근데 이 사람이 습관적으로 그런 것 같으면 한 사람끼리 세 명 정도 힘들다고 그러면 그 사람이 나가야 되는 거에요.
코로나 같은 경우에는 예전에 코로나 학생들이 코로나에 걸리면 생활치료센터 이런 데도 갔었잖아요. 근데 요즘에 걸리면 어떻게 해야 돼요?
지금은 걸리는 경우가 그렇게 많지 않고 걸리면 아예 자기 집으로 가든지 그러더라고. 지금은 걸려도 그냥 처음에는 걸리면은 아예 생활센터로 가니까 근데 지금은 얘기를 안 해 그리고 애들이 자체 검사를 해 갖고 약 먹고 그냥. 말하면 손해인 거예요. 시험도 못 보고 제가 봐도 그래 자기 벌써 자기 생활에 독서실도 못 가고 아무것도 생활이 안 돼. 간혹 가다가 저한테 전화가 와요. 그래서 제가 이제 뭐 밥이나 뭐 이런 거 시켜주고 이제 갖다 주고 이렇게 몇 번 했는데 그렇지 않아요. 지금은 다 해결하는 것 같아요.
뉴스에서 고독사라든지 이런 경우가 좀 있었는데 여기도 그런 경우가 있었나요?
아 여기는 그런 건 없는데 자살은 있어요.
저희 집은 없었어. 간혹 들리는데 그 자살이라는 게 여기는 시험하고 연관돼 있고 어떤 젊은이들이 고독사는 아니야 여기는 그렇죠 왜 그런 것보다는 어떤 시험에 이런 건데 지금은 그래도 제가 이거 하면서 딱 한 건 들어봤어요.
영업을 하면서 가장 큰 고충은 무엇인가요?
영업이 안 됐을 때 뭐든지 막 그런 생각을 하잖아요.
근데 제가 10년은 엄청 활발하게 영업이 잘 됐잖아요.
근데 코로나 다 그때부터 제가 안 된 거라서 저로서는 크게 바라는 건 없는데 조금 글쎄 저는 그 생각을 그렇게 해보지는 않았어요.근데 이제 제일 힘들어하는 게 요즘 사람들이 그거더라고 그냥 뭐 좀 영업이 안 되니까 방에 보시다시피 좀 작아요.
공간을 좀 넓히고 싶고 뭔가 좀 변화를 주고 싶은데 법이라는 게 주택법이나 이런 거 법에 제한이 돼 있기 때문에 주차장법이나 이런 게 좀 완화를 좀 시켜주면 방을 좀 넓히고 싶으면 주차장도 좀 넓혀야 되고 또 신고도 다 해야 되고 하는데 물론 그 법을 바꾸기는 힘들겠지만 현재 약간 그런 얘기들은 가끔 저희들도 모이면 그런 부분은 얘기를 해요. 제한도 많고 방을 좀 넓히고 싶은데 보시기에는 이게 건물이 커서 돈이 되게 많아져 보이지만 사실은 또 없는 팔지도 못하고 이걸 직업수만 하니까 뭔가 좀 술이나 뭐 이런 거 하면은 뭔가 지원 제도가 있긴 있어 저희들도 아는데 거기에 또 청중 요건을 갖추고 하려면 또 아주 극소수..
마지막으로 하고싶은 말씀 있으신가요?
면담 요청하니까 다 만나주시고 해가지고 여러 가지 얘기도 많이 들어보고 좀 여러 가지 생각을 많이 하기는 했었죠. 예전에 서울시에서도 면담을 했었는데, 그때 되게 좋게 몰랐던 부분도 많았고 그랬다고 그랬어요. 면담을 하니깐 우리 이야기를 알릴 수 있어서 좋았습니다.
ㅁㅁ고시원 거주자 면담
2022.10.15 토 오후 6:20
고시원 전체 거주 기간은 어떻게 되시나요?
한 4개월 정도 됐습니다. 공모준비 때문에 아무래도 여기가 접근성이 좋아서 선택했습니다.
그러면 낮에는 학원에서 수업 들으시고 하시는 걸까요?
오전에 저희 여기는 오전 오후 저녁 이렇게 나뉘어져 있는데 네 저는 오전에 9시에서 11시에 잠깐 문 열고 창도 잠깐 하는 그런 간단한 업무만 하고 있어서 크게 방해가 되지 않아서 총무도 하고 있습니다.
여기 그러면 방비는 만약에 선생님 내셔야 하면 어떤 얼마짜리 방을 쓰고 계신 거예요?
여기가 좀 그래도 다른 고시원들에 비해 좀 오래된 편이라서 가격이 그래도 좀 그렇게 비싸지는 않은 편이에요. 평균적으로 한 28만 원에서 30만 원 정도.
고시원에서 또 단기로 있다가 이쪽으로 오셨는데 그 이유는 뭔지 여쭤봐도 되나요?
그때그 상반기에 시험 붙어서 면접 준비하느라 단기로 한 달 반 정도 살았는데 그게 안 돼가지고 다시 본가로 갔다가 다시 이제 다음 시험 준비하려고 다시 온 아무래도 그 고시원이 좀 더 여기랑 가깝기도 하고 여성 전용 고시원이다 보니까 여기에 비해서는 층이 그렇게 많지도 않고 딱 열 방이 한 15개 정도만 있었어요. 그래서 좀 더 괜찮기도 했고 거기는 또 여기랑은 다르게 다 제공이 됐거든요. 옵션 같은 게 약간 밥도 약간 반찬 같은 것도 어머니가 좀 이렇게 상시로 이렇게 좀 해주시고 반찬 제공 1이 있고 또 특식 같은 것도 딱 있고 그리고 안에 화장실이 있었어요. 내 안에 방에 화장실에 있는 그런 쪽이라서 여기는 층마다 공용 화장실이 있거든요. 샤워실이랑 따로 이렇게 돼 있고 안에는 화장실이 없어요.
대신 그러다 보니까 좀 더 넓은 방이 좀 더 넓은 편이기도 한데 그래도 없으니까 좀 더 그거에 따른 불편한 점이 또 그쪽 다른 고시원은 여기랑은 엄청 가까웠거든요.
5분 거리 그러다 보니까 접근성은 엄청 좋은데 반면에 좀 가격이 좀 비싸다.

고시원에서 하루 평균 머무른 시간 좀 적어주실까요?
평일에는 몇 시간 정도 주말에는 몇 시간 정도.
고시원에서 제공하는 음식 아까 밥만 든다고 했죠.
여기는 네 하루 평균 몇 회 정도 밥을 드시는지 한 번 정도 그러면 나머지 반찬이나 같이 먹을 거는 본인이 따로 이렇게 가져와서. 따로 요리할 수 있는 거, 빵이 있어가지고 거기서 컨셉아니면 사했거나..
소음이나 안전에 대한 것은 어떻게 생각하고 있으신가요?
크게 그렇게 걱정은 안 되는 것 같은데 아무래도 제가 총무 일을 하다 보니까 그래도 제가 좀 여기 있다보니까 그런 거는 그렇게 크게 신경 안 쓰는데 다른 분들은 아직 잘 모르겠어요.
근데 그래도 비교적 괜찮은 편이에요. 불편한 점은 그냥 빨래 널 때 옥상에 넣는데 그럴 때 그냥 좀 여자분들은 속옷 같은 거는 개별적으로 방 안 해 놓고 남자분들은 그래도 속옷 위에 들기도 하고 그러거든요.
실내에서 또 흡연하시기도 하나요?
그런 경우는 못 본 것 같은데 창가 쪽, 이쪽 방은 아무래도 여기가 맞은 편에도 고시원이 있고 하다 보니까 밤에 그럴 때 약간 좀 시끄럽기도 하기도 하고 약간 미화원 그런 차 같은 것도 많고 배달 오토바이 그런 게 좀 많이 다니는 편이라서 그런 게 좀 적응하려면 좀 쉴 시간이 좀 필요하긴 한 것 같아요.
현재 고시원에서 겪는 주된 어려움은 무엇입니까?
아무래도 그냥 시원에서 보는 어려움보다는 아무래도 따로 나와서 사니까 그런 생활비 부담이에요. 외로움과 고립 이런 것도 있어요.
현재 고시원에서 이웃과 어떻게 지내십니까?
그냥 이렇게 왔다. 갔다. 할 때 그니까 아는 분들이 있으면 그냥 자주 보는 분들이 인사해 주시면 하는데 거의 안해요.
혹시 지난 1년 동안 한 번이라도 자살하고 싶다는 생각을 해본 적이 있습니까?
그냥 너무 막 심하게 그렇게까지는 아닌데 그래도 그냥 시험 떨어져서 그냥 왜 사는 어서 어쨌든 나이가 있기도 하고 하니까 취업을 해야 되는 그건 맞는데 이 시험이 100% 된다는 보장이 없잖아요.
소리가 들리거나 이 방에서 소리도 들리나요?
방에서 통화 같은 거나 드라이기 사용도 금지돼 있어서 따로 들어본 적은 없는 근데 스토디론이 저희가 있거든요. 거기에는 그래도 다른 외부인 여기 있는 원생이 다른 외부인이랑 같이 해서 와서 이용할 수는 있어요.
노량진 고시원에 좀 특수성이 있을 것 같은데 좀 어떤 것 같으세요?
이 고시원만의 특수성이 약간 대학생들보다는 고시생들 준비하는 사람들이 많은 것 같아요.
보험이나 직렬별로 다양하니까 이거는 보통 공무원 시험은 상반기에 많이 끝나잖아요.
지방직 하면 6월 7월 정도에 끝나니까 아무래도 그때 시험이 끝나면 다들 많이 나가세요.
그래서 좀 한산하고 또 이제 해 바뀔 때쯤에 연말에 이렇게 다시 들어오고 그래서 한창 8월에 들어왔을 때는 사람들이 많이 비어있어서 그때는 딱 경찰 공무원 준비하는 사람들이 거의 이제 2차 준비해요. 그거 끝나고 이제 내년 그때도 경찰공무원 2차 올해 시험은 끝났으니까 다들 이제 나가고 국가 지방직도 이미 진작에 나가고 했으니까 이제 슬슬 이제 또 연말 되니까 또 오시는 것 같아요.
지금 같은 시험을 준비하시는 분들 중에 여기 고시원을 선호하거나 고시원에서 공부하면 더 합격이나 이런 거에 좋다. 이런 게 있을까요?
저녁 총무님도 경찰 준비하시거든요. 그분도 그냥 고시원에서 그냥 공부를 하신다고 하셔서 근데 고시원 내에서 공부한다고 그러니까 방 안에서 공부한다고 더 잘 되고 그런 건 없는 것 같고 돈이 아까우니까 고시원 노량진까지 왔는데 원래 그러니까 살던 곳에서 독서실을 다니면서 하나 하면 돈이 그렇죠 생활비가 거기는 안 드니까 근데 노량진까지 와서 굳이 독서실에 가냐 여기까지 왔는데 그래서 그냥 방에서 하자 하면서 그냥 하시더라고요 그래도 여기가 방음에는 그렇게 취약한 편이 아니라서 할 수 있는 것 같아요.







